Lauriergracht 116 (E)
Type
Atelier (toptoets)
Adres
Lauriergracht 116E - Delen mag!, 1016 RR - Amsterdam
Huurprijs
€ 680 per maand
Servicekosten
€ 100 per maand
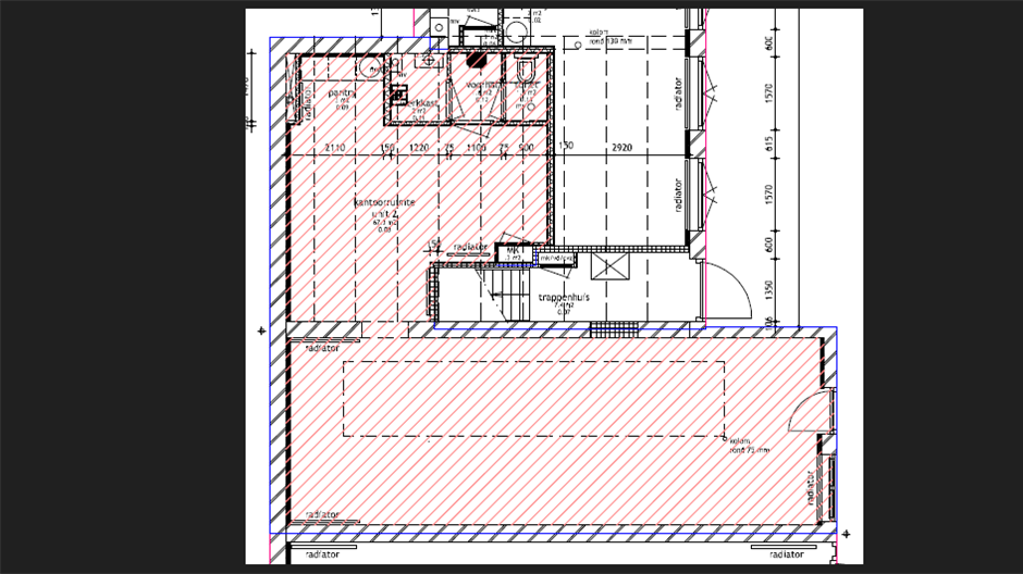
Oppervlakte VVO
77 m2
Etage
BG
Lift
Nee
Geluidsisolatie
Nee
Eigenaar
Gemeentelijk Vastgoed
Beheerder / verhuurder
Gemeentelijk Vastgoed
Bijzonderheden
Het atelier zit een monumentaal pand met veel andere CAWA kunstenaars en heeft een gezamenlijke binnenterrein.
- De ruimte is niet geschikt voor muzikanten, beeldhouwers of andere beroepskunstenaars die geluid produceren.
- Deze ruimte mag gedeeld worden met andere kunstenaars (hieronder valt ook het werken in duo’s). Onderverhuur en medegebruik is echter niet toegestaan.
- Deze ruimte is niet bedoeld als pop-up, expositieruimte of commercieel verkooppunt.
- Het is onder geen beding geoorloofd in het gehuurde te wonen of het gehuurde onder- of door te verhuren of in gebruik te geven dan wel zich op het adres van het gehuurde in te schrijven in het bevolkingsregister.
- Huurtermijn is 5 jaar
- De waarborgsom is 2.040 euro
- De huurprijs van een atelier is exclusief 21% btw en exclusief servicekosten. Bij belaste verhuur wordt er 21% btw (of het dan geldende percentage) in rekening gebracht. Bij onbelaste verhuur wordt btw-compensatie in rekening gebracht.
- Voor het gebruik van gas, elektriciteit en internet dient huurder een eigen overeenkomst af te sluiten. Water is onderdeel van de servicekosten.
- Huurder betaalt mee aan de kosten van voorzieningen en kosten van de algemene ruimtes. Deze kosten worden met de huurder afgerekend gebaseerd op het percentuele aandeel van het aantal m2’s van het gehuurde atelier ten opzicht van het totale pand.
- Dit atelier mag gedeeld worden: in dit geval moeten alle kandidaten met wie u het atelier wil delen ook een toptoets te hebben. De kandidaten dienen zich tegelijk aan te melden/reageren op deze ruimte zodat zij in dezelfde vergadering getoetst worden. Andere kandidaten gaan voor als niet iedereen is getoetst met wie u het atelier wilt delen.
- Wanneer huurder(s) na de huurtermijn aanspraak willen maken op een nieuwe huurovereenkomst moet elke kunstenaar afzonderlijk individueel getoetst door CAWA;
- Indien één of meerdere van de huurders niet positief getoetst worden door CAWA dan dient deze het gehuurde te ontruimen;
- Als een individuele huurder niet positief getoetst wordt door CAWA zal de overige positief getoetste huurder de huurverantwoordelijkheden overnemen;
- Elke individuele huurder is te allen tijde hoofdelijk aansprakelijk voor het betalen van de volledige huur.
Foto











