Nieuwe Amstelstraat 40-22
Type
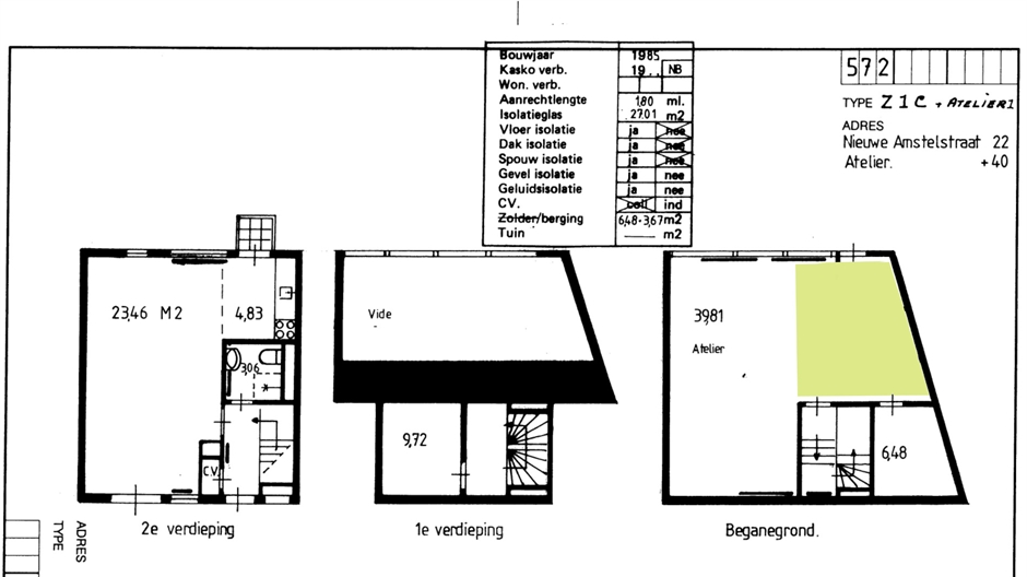
Adres
Huurprijs
Servicekosten
Oppervlakte VVO
Lift
Geluidsisolatie
Eigenaar
Beheerder / verhuurder
Bijzonderheden
Op de Amstelstraat 40 komt een atelierwoning vrij. Het betreft een sociale huurwoning waarbij de huurprijs voor het woondeel en atelierdeel gesplitst kan worden. De woning plus atelier vormen een geheel en is gelegen op de begane grond. Het heeft grote ramen aan de voorzijde, dus is bij uitstek geschikt voor een kunstschilder. Het ligt te midden van woningen, dus het is niet geschikt voor een kunstenaar wiens werk tot geluidsoverlast leidt. De oppervlakte is verdeeld over het woongedeelte: 40,07 vierkante meter en het ateliergedeelte: 39,81 vierkante meter.
Bewonersvereniging De Halve Wereld drijft op haar bewoners: iedereen draagt onbezoldigd een steentje bij. Op dit moment zoekt De Halve Wereld een nieuwe bewoner die actief kan en wil deelnemen aan de Commissie Onderhoud. Dit vergt vooral enige communicatieve vaardigheden. Bij kleine schades ga je bij bewoners kijken wat er aan de hand is, overlegt dit via app of mail met de andere commissieleden, en zet het zo mogelijk uit naar een loodgieter, etc. Deze werkzaamheden zullen maximaal een paar uur per week in beslag nemen en zijn meteen een leuke manier om je medebewoners beter te leren kennen.
- Deze atelierwoning is niet geschikt voor muzikanten, beeldhouwers en beroepen die geluid produceren.
- De woning wordt passend toegewezen. Zie https://www.ymere.nl/ik-zoek/sociale-huur/een-woning-die-bij-u-past/
- De atelierwoning wordt aangeboden voor onbepaalde tijd.
- Een 1-persoonshuishouden, of personen die een duurzaam gemeenschappelijk huishouden vormen.
- De waarborgsom is €0,01
- Voor gas en elektra moet een eigen contract worden afgesloten
- Voor de inkomenseis zie inkomensnorm ateliers en atelierwoningen
Voor dit atelier is een toptoets van toepassing, check eerst de voorwaarden https://www.amsterdam.nl/kunst-cultuur/ateliers-broedplaatsen/voorwaarden/ en reageer alleen als u voldoet aan deze criteria.
De CAWA-commissie toetst alle reactanten voor deze atelierwoning. De meest geschikte kandidaat wordt in relatie tot de ruimte voorgedragen aan de verhuurder.







