De Nieuwe Amstelstraat 40B
Type
Adres
Huurprijs
Servicekosten
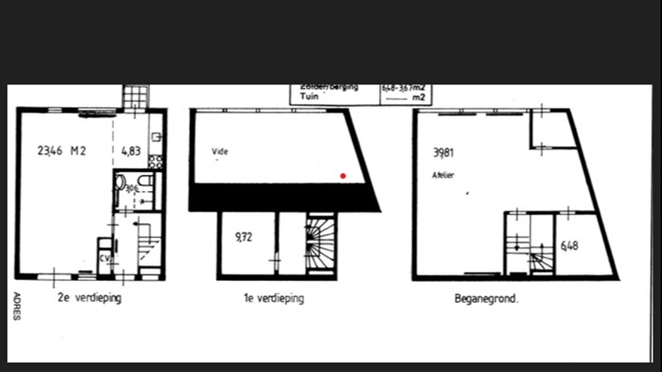
Oppervlakte VVO
Lift
Geluidsisolatie
Bijzonderheden
De Halve Wereld is een zelfbeheervereniging.
Wij zijn op zoek naar iemand die actief wil bijdragen aan het in stand houden van de vereniging door deel te nemen aan commissies.
Voor meer inzicht in de vereniging kun je terecht op onze website: https://www.dehalvewereld.nl/
Wie komen in aanmerking?
Een 1-persoonshuishouden, of personen die een duurzaam gemeenschappelijk huishouden vormen
Sociale huurwoning waarbij de huurprijs voor het woondeel en atelierdeel gesplitst kan worden:
- Huurprijs woondeel: €668,17
- Huurprijs atelier: €404,04
- Regulier contract
Voor deze woon/werkplek zijn aanvullende criteria van toepassing
Voor meer informatie zie Voorwaarden ateliers, atelierwoningen en broedplaatsen | Gemeente Amsterdam
Er is geen lift en geluidisolatie, maar de ruimte is ook bestemd voor muzikanten, beeldhouwers en andere geluidsproducerende beroepen.
Interesse?
Stuur een bericht naar toewijzingdhw@gmail.com
Foto









